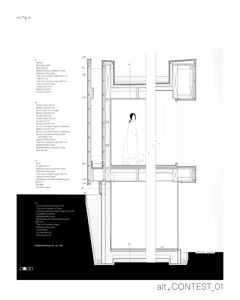
alt+CONTEST_01 — Howard’s Waterfall Retreat

Temă
Un refugiu familial multigenerațional integrat în peisajul cascadei Howard Falls. 
O inserție care valorifică apa, topografia și memoria construcției existente.

Propunere
O arhitectură simbiotică – parte a parcursului apei, inserată în versant și în traseul cascadei.
O rampă în buclă, pliată pe panta terenului, traversează casa și leagă volumul de cascadă. 

Construcția existentă este reinterpretată prin absență. Golul fostei cabane devine memorie activă; volumul se organizează în jurul acestui gol, între apă și peisaj.

Parcursul devine experiență. Mișcarea devine arhitectură.

Echipă: 
Florin Schipor
Alexandru Constantin Bodron
Gabriel Tudora
Răzvan Mircea Nica

alt+CONTEST este un proiect ALT+A de formare profesională și mentorat prin participarea la competiții internaționale de arhitectură.  Concursul este utilizat ca instrument de research by design, experimentare creativă și calibrare critică a ideilor, prin raportare constantă la un cadru internațional deschis.